Kız Kulesi'nin restorasyonuna ilişkin teknik rapor ortaya çıktı! İşte çalışmaların tüm detayları

Giriş Tarihi:Son Güncelleme:

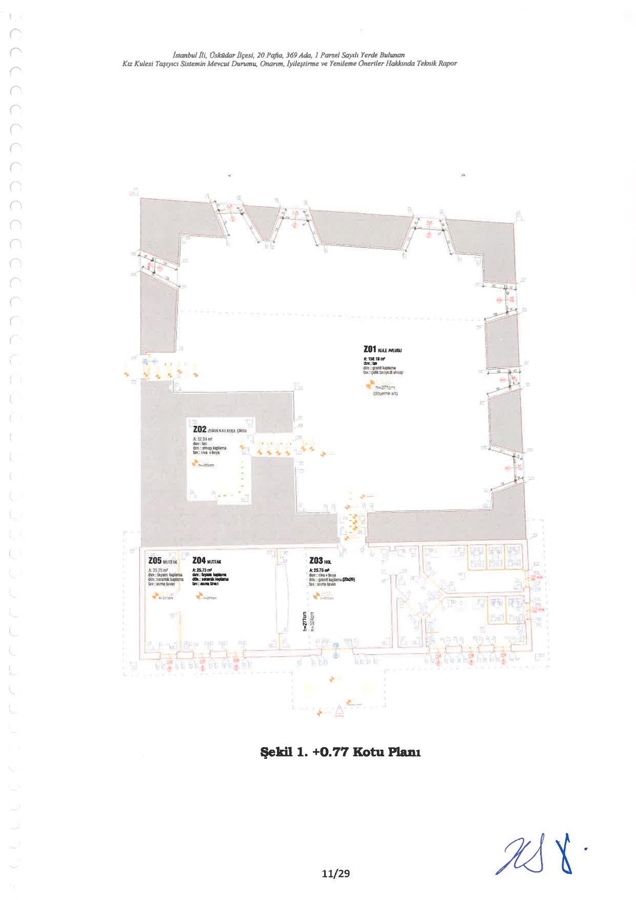
İstanbul'da geçtiğimiz aylarda restorasyon çalışmaları başlatılan Kız Kulesi'ne yönelik sosyal medyada dolaşan iddialara ilişkin açıklama geldi. Kültür Varlıkları ve Müzeler Genel Müdürü Gökhan Yazgı 1940'lı yıllardaki kız kulesinde yaşanan yangın sonrası yapılan betonarme eklentiye dikkat çekerken, çalışmaların 2022 yılı sonunda biteceğini ifade etti. Diğer yandan Kız Kulesi'nin restorasyonuna ilişkin teknik detaylar da İTÜ tarafından hazırlanan raporda açıklandı.

Kız Kulesi'nin restorasyonuna ilişkin teknik rapor ortaya çıktı! İşte çalışmaların tüm detayları 1
Kız Kulesi'nin restorasyonuna ilişkin teknik rapor ortaya çıktı! İşte çalışmaların tüm detayları 2
Kız Kulesi'nin restorasyonuna ilişkin teknik rapor ortaya çıktı! İşte çalışmaların tüm detayları 3
Kız Kulesi'nin restorasyonuna ilişkin teknik rapor ortaya çıktı! İşte çalışmaların tüm detayları 4
Kız Kulesi'nin restorasyonuna ilişkin teknik rapor ortaya çıktı! İşte çalışmaların tüm detayları 5
Kız Kulesi'nin restorasyonuna ilişkin teknik rapor ortaya çıktı! İşte çalışmaların tüm detayları 6
Kız Kulesi'nin restorasyonuna ilişkin teknik rapor ortaya çıktı! İşte çalışmaların tüm detayları 7
Kız Kulesi'nin restorasyonuna ilişkin teknik rapor ortaya çıktı! İşte çalışmaların tüm detayları 8
Kız Kulesi'nin restorasyonuna ilişkin teknik rapor ortaya çıktı! İşte çalışmaların tüm detayları 9
Kız Kulesi'nin restorasyonuna ilişkin teknik rapor ortaya çıktı! İşte çalışmaların tüm detayları 10
Kız Kulesi'nin restorasyonuna ilişkin teknik rapor ortaya çıktı! İşte çalışmaların tüm detayları 11
Kız Kulesi'nin restorasyonuna ilişkin teknik rapor ortaya çıktı! İşte çalışmaların tüm detayları 12
Kız Kulesi'nin restorasyonuna ilişkin teknik rapor ortaya çıktı! İşte çalışmaların tüm detayları 13
Kız Kulesi'nin restorasyonuna ilişkin teknik rapor ortaya çıktı! İşte çalışmaların tüm detayları 14
Kız Kulesi'nin restorasyonuna ilişkin teknik rapor ortaya çıktı! İşte çalışmaların tüm detayları 15
Kız Kulesi'nin restorasyonuna ilişkin teknik rapor ortaya çıktı! İşte çalışmaların tüm detayları 16
Kız Kulesi'nin restorasyonuna ilişkin teknik rapor ortaya çıktı! İşte çalışmaların tüm detayları 17
Kız Kulesi'nin restorasyonuna ilişkin teknik rapor ortaya çıktı! İşte çalışmaların tüm detayları 18
Kız Kulesi'nin restorasyonuna ilişkin teknik rapor ortaya çıktı! İşte çalışmaların tüm detayları 19
Kız Kulesi'nin restorasyonuna ilişkin teknik rapor ortaya çıktı! İşte çalışmaların tüm detayları 20
Kız Kulesi'nin restorasyonuna ilişkin teknik rapor ortaya çıktı! İşte çalışmaların tüm detayları 21
Kız Kulesi'nin restorasyonuna ilişkin teknik rapor ortaya çıktı! İşte çalışmaların tüm detayları 22
Kız Kulesi'nin restorasyonuna ilişkin teknik rapor ortaya çıktı! İşte çalışmaların tüm detayları 23
Kız Kulesi'nin restorasyonuna ilişkin teknik rapor ortaya çıktı! İşte çalışmaların tüm detayları 24
Kız Kulesi'nin restorasyonuna ilişkin teknik rapor ortaya çıktı! İşte çalışmaların tüm detayları 25